Come ci provi, sai, per il cablaggio elettrico negli appartamenti della tavana
Tutto il proprietario dell'abitazione ima riparazione è di base. Tova può essere una seconda casa, un appartamento in una nuova città, una nuova casa privata o un veche in uso. È singolo dal palco per le riparazioni ed è collegato all'elettricità. La maggior parte dell'elettricità dipende dal tavan. E qui hai molte domande, come possiamo dirigere tutto in modo corretto in conformità con GOST, joint venture, PUE e altre regole. Tazi articolo sottopancia basic.
Contenimento: 1. Quando è opportunamente cablato a Tavana? 2. Metodo per il montaggio su un cavo - in corrugato o in pulegge? 3. Come provi a trovare un cavo, consumato e altri materiali? 4. Quale strumento è più necessario per il lavoro? 5. Tipici circuiti elettrici per illuminazione e contatti 6. Tutti gli elementi elettrici su tavana: vantaggi e svantaggi, confronta valore e praticità
Quando è opportunamente cablato a Tavana?
Montiraneto sul cavidotto sulla tavana, il cemento è pervertito, ma è troppo alto sul mastice grezzo del focolare, almeno 6 cm o più, inevitabilmente coperto di riscaldamento e alimentazione dell'acqua, per qualche motivo è più alto sul mastice, fino a 8 cm o più.
Tempo di riparare quasi un guasto in previsione della presenza di falsi tavan (voltaggio, cartongesso e altri tipi).

Tavanno telegrafato in prevendita.
Distinguere in imbrattato e livellato, poiché il tavane è foderato dal fondo della spalla, il metodo è obsoleto e poco pratico in relazione al prezzo e alla funzionalità. È difficile installare il corpo nudo del corpo, perché sì, illuminare il gregge in modo positivo.In kashchi, fatto dal darvo, è apparentemente montir sul tavan e sulle creste interpiano, dori sull'autostrada (uno a ciascuno in un gruppo di larghezza), a volte adagiato sul passaggio sul tavan o sul rude tavan.

Un esempio per kabelavane su darven podtavan.
Nel kashchi monolitico, è assemblato con cura, e non geme, secondo il progetto, è attaccato al corriere della colonia, in cui viene portato via tutto il giusto zhleb, vdlbnatini o d'altra parte, violando l'integrità della struttura.


FAQÈ possibile mangiarlo da soli?Non c'è ambiguità. Spazzare le superfici in cemento stomano (prodotti in cemento stomano), per motivi di caratteristiche costruttive (pittura sul tegloto e aumento sul jacost dalla cucina), distruggere queste proprietà quando braddyavan, alcuni possono essere portati a un tyahnoto srutvane. Non strappare i canali in monoliti fissando le loro spalle a cavi o altri materiali. L'unica eccezione è aprire i dispositivi di fissaggio degli elementi. La distribuzione di kuti può essere cucita con cartongesso, opnati tavani o altri tipi di tavani? Sì, è possibile secondo GOST R 50571.5. occhiali di vrazki trebva Sì, tu può accedere in osservazione per misurazioni e supporto, con un'eccezione, seguono le iniezioni: ... dirette tramite infusione, saldatura o versamento di testvane ... ". Non è consigliabile modificare altre opzioni, per non dare alcuna garanzia di qualità, durata e sicurezza.
È collegato uno per uno dall'inizio, il che significa che l'accesso al tazi kutia è aperto non è sempre necessario. Forse è sicuro nascondersi sotto un falso muro.L'esperienza del montatore consisteva nell'aiutare, che kutia, gradazione in stenat, dori e aprire l'accesso in tempo per le successive riparazioni cosmetiche, spesso coperte da tapeti o uno strato di mazilka. Apri la porta stessa, lasciando la fattura cablata esternamente. È un tale tryabva e isola tutti i bordi. Nai è conveniente e sicuro da avviare per l'isolamento, ad es.

indietro kjm sdzharzhanieto ↑
Metodo per il montaggio su un cavo - in corrugato o in pulegge?
E due metodi di risoluzione, ma si ritiene che in covoni sia molto limitato. La risposta di Tosi è controversa e poco chiara sia per il cliente che per l'installatore. È necessario proteggere te stesso e tutto questo da un punto visibile sui documenti normativi PUE, SP e GOST. In Joint Venture 256.13258000.2016, che è in qualche modo appropriato da PUE, ima clausola 15.8.Toy kazva: “I fondi per treshni groupi Treabs sono modificabili: skriti - in canali speciali per strutture edilizie, recinzioni; aperto - in elettricamente pervaz, cutia, ecc., con un certificato di conformità secondo GOST R 53313 ″.
C'è un'altra posizione nella joint venture tov - 15.5. In esso, ecco un caso: “Nel proteggere la struttura dell'edificio da materiali non infiammabili e leggeri (gruppo G1), è insostituibile posa monolitica su grate di gruppo in roaming su muri, barriere, tavani, sotto mazilka, nella preparazione di uno strato sul focolare, attorcigliato con un cavo o conduttori in una guaina protettiva”.
Nei due punti dell'ima ci sono due pensieri contraddittori: "Tryabva" e "permesso". Nella domanda, mettendo un punto su punto 1.1.17 sul PUE: “Per questo, paga un debito per l'esecuzione della ricerca sul PUE, pensa “tryabva”, “tryabva”, “Necessario” e derivati da tyah.Il pensiero è “consentito“ Nel senso che la decisione di applicare questa eccezione è forzata (per motivi di condizioni limitanti, risorse limitate, installazione su apparecchiature, materiali, ecc.)”. L'opzione con una guaina isolante aggiuntiva non è sicura per il cavo stesso, ma il cliente decide che qualcosa è meglio per questo. Ora, diamo un'occhiata a due metodi.
Nel cavo corrugato, lo metto sul tavan sul monolite, sulla parte superiore del pavimento di cemento, sul fondo e sul fondo, lo piego lungo il muro. Toy e è suddiviso in categorie, specie, colore e meccanica. In conformità al punto 6.4 di GOST R IEC 61386.1-2014, le seguenti categorie sono diverse dalle opzioni di protezione:
- Razprskvane sulla fiamma o no razprskvane.
- Con o senza protezione anticorrosione.
- Il grado di protezione contro la penetrazione di particelle solide o acqua si basa sull'indice IP ed è standardizzato secondo il cap. 5 e 6 GOST 14254-2015g.
- Con o senza lampeggio (la presenza di un cavo stomano nel cavo è teso sul cavo).
- Limiti di temperatura superiore (da -45ºC a + 5ºC) e superiore (da + 10ºC a + 400ºC) in conformità al punto 6.2 di GOST R IEC 613866.1-2014.
- Potente o no - influenzando il mu yakost meccanico.
- Resistente alla corrente elettrica (bassa conduttività).
Il tipo di lamiera grecata differisce da materiale a produzione:
- Cloruro di polivinile (PVC) e nai - aspetto noto ed evtin. Non diffonde la combustione, ma non è stabile come la luce ultravioletta, per qualche motivo può essere più bianca e persino decomposta. Non tutti i preporchva per usarlo apertamente. Di solito è il colore, ma il produttore produrrà altre opzioni (bianco, nero, caffeina, beige o venature del legno). Tova gofrirane strisciava dietro la cabala nel recinto. La resistenza alla compressione (yakost) è divisa in 3 tipi: lek, medium e flat (rispettivamente 350, 750 e 1100 N).Tova è determinato dalla possibilità di montaggio su uno specifico percorso ondulato in cemento, cancello o drogato.
- Polietilene - a seconda della tecnologia per la produzione di se, le ondulazioni si distinguono per nalyagane basso e alto. Tali designazioni sono cato LDPE e HDPE. Quelle sa sono resistenti alla luce ultravioletta, ai prodotti petroliferi e alla gelatina, ma sono a rischio di incendio. Comunemente quelli sono neri, vermi e blu. Tova gofrirane è strisciata fuori per aver fatto affidamento sui cavi navn. "Tezhkoto" corrugato da HDPE tutti i beccucci con mastice e tubi a doppia parete possono e saranno sotterranei. La fioritura di solito avviene con neri, arance, vermi, in fila blu. La stabilità della compressione è la differenza tra le due opzioni: 350 e 750N.
- polipropilene - simile al tipo precedente, realizzato in materiale polimerico. Resistente a fattori esterni e non a sostegno degli emarginati. Forse è perché striscia in qualche modo in autunno, così e otvn (non indicato nel trattamento UV). Tratto distintivo la sua resistenza alle alte temperature (+115°C). Bloom spesso e syn. Opzioni Ima ad alta potenza, costo fino a 750N. La traccia di chi dovrebbe poterla riempire di mastice. La stabilità della compressione è la differenza tra le due opzioni: 350 e 750N.
- Poliammide - utilizzato per proteggere il cavo dall'umidità. Resistente ai raggi UV e adatto per installazione esterna. Può essere ignifugo (installato all'interno) Resistente alle alte temperature (+150°C). L'offerta è in nero.
A seconda della meccanica del costo e del tipo di corrugazioni del cavo. In conformità con il punto 6.1 di GOST R IEC 61386.1-2014, parametrizzare il costo della divisione in stabilità sulla testa, impatto, rotolamento e merci rotolate. Ogni categoria di ima ha la sua forza, ma la cosa principale è la resistenza ai colpi. Diviso per tag nel seguente:
- Un sacco di lek - minima resistenza all'impatto (prezzo nei-niska).
- Leka - debole yakost meccanico, ma golyama gavkavost.
- Medio - Adatto per l'inserimento in una parete. Costoso per danni dall'estate e punzonatura.
- Tezhka è un golyama di un debelin su uno stenat e un losha gvkavost. Adatto per beccucci in costruzioni in cemento.
- Un sacco di opzioni tezhak - no - izdrzhliviyat e skjp. È necessario per la posa in terra o in luoghi con altro riempimento meccanico.
PreferenzeAcose regole spasvat per l'installazione (sotto l'angolo da 90º e senza riscaldamento), il cavo può essere sostituito da dory in una parete imbrattata.Prevenzione da corrosione, fumi, ceneri, umidità e danni meccanici.tutti i tipi di tavani e cavi nei locali abitativi ... mancanza di prezzo e al tempio, scheggiato durante la posa in confezioni.


Il metodo “in covone” viene installato su un cavo elettrico su tavana attraverso una lastra su un conduttore in covone con successiva guaina. Kolkoto sul golyam è uno snopt, sensibile per -chesto trebva ed ecco un fissatore su una tavana, una cosa del genere e nessun cedimento. L'installazione di questo è giustificata in conformità con il focolare dei documenti normativi e la parte superiore della superficie incombustibile. Sto discutendo sulle marche di cavi adatti al metodo tosy: VVGng-LS, PPGng-HF e NYM.

Installazione in pulegge e senza isolamento aggiuntivo Vantaggi Semplicità e barzin sull'installatore Appaiono sulla pressione dell'acqua Preso per l'installazione in casa e costruzione.
Prima dell'installazione, è bene avere una superficie su uno stucco monolitico o un pavimento di cemento e questo è un piacere con una malta ignifuga e resistente all'umidità (perché sì, si affretteranno a scommettere - battaglie). L'idea del compagno di comprendere i tavan di izkhvarlyane su particelle di cemento visibili sulla superficie e ancora più divertente è attaccata all'umidità. È pregiudizievole apprezzare il costo sulla macchina (per chiarimenti - non più di 10A, per contatti - non più di 16A).
Come provi a trovare un cavo, consumato e altri materiali?
Per la posa sulla tavana vengono utilizzati cavi che garantiranno una corretta installazione, secondo GOST 31565-2012, sezione 5:
- VVGng (A) -LS è un cavo a bassa infiammabilità con base in PVC, classe di sicurezza antincendio di categoria A e bassa emissione LS (low smoke).
- PPGng (A) -HF è un cavo con anima in polietilene (PE) e presenta caratteristiche simili a VVGng (A) -L.
- NYM è l'equivalente tedesco per i cavi prefabbricati, è nella guaina rotonda.
I materiali di consumo includono un tassello di montaggio da 6 mm, viti autofilettanti per porte e viti metalliche, graffette per staffa ondulata, metallica o di plastica, piattaforma con un grillo per una staffa, un tassello da un riben kost per cavi piatti e tondi, singolo e shangs di serraggio a doppia faccia, una staffa con tassello.
Quale strumento è più necessario per il lavoro?
Tavannoto okabelavane iziskva seguire gli strumenti e consumativi:
- Mandrino rotante con punta da 6, 10, 14, 18, 20 mm e piatto per calcestruzzo.
- Un cacciavite con punta sulla vite e autofilettante sulla vite.
- Pistola montata su accumulatore e consumazione per essa.
- Utensili manuali (set di cacciaviti, pinze, pagine taglierina, chuko, tapparella).
- Gloshlayf (mulino).
- Stenen perseguitato con un prahosmukachka industriale per okachvane lungo la stenite.
A volte lavori con un trapano a percussione, una pistola montata, una smerigliatrice e un cacciatore di muri, e dovresti usare i tuoi mezzi personali: occhiali, a seconda delle condizioni di lavoro (apertura o chiusura), un respiratore e rakavitsi dal tessuto, a volte prevenire il risveglio e l'esaurimento.
Tipici circuiti elettrici per illuminazione e contatti
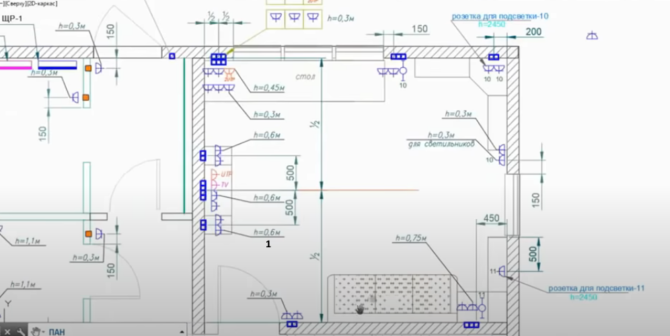
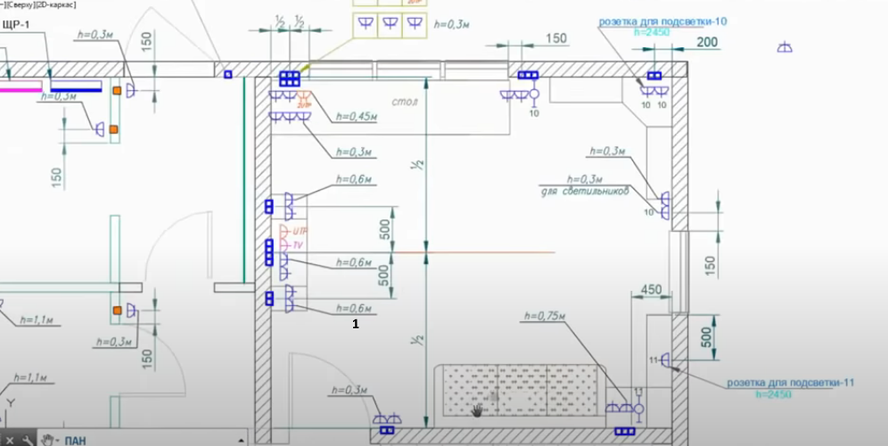
Installato sull'impianto elettrico dell'appartamento e del terreno della casa privata, è stato redatto un piano secondo le regole, alcuni dei quali mostravano il risultato finale: lampade, contatti, chiave, quadri cutia, punti sull'accumulo (fornace, caldaia, ecc.) , conduttore di linea. Il segnalino giocattolo è un disegno generale sulla scala, una suddivisione sui mobili e domakinski uredi. Ako l'area è piccola e decidi di inviarla agli appartamenti con il tuo tabellone segnapunti, puoi disegnare un semplice diagramma sul foglio della carta. Tova e è molto buono, otkolkoto e darzhish vsichko nella testa di si.

Il contorno è semplicemente disegnato.
In caso di una piccola area, pochi piani, attrezzature complesse, esperienza nella progettazione e installazione, è possibile assumere uno specialista nella progettazione e installazione. Ima e un amico dell'opportunità: sì, prepara il progetto, invia le domande e invia lo scambio tramite programmi speciali: Microsoft Visio, Dia, Splan. Lo schema del progetto è costituito da una nota esplicativa del progettista, simboli, posizione sulla lampada e sull'interruttore, un sistema per il livellamento del potenziale e schemi unifilari che mostrano i dispositivi di protezione sul focolare nello scudo.
Ecco le opzioni per un piano tipico con una definizione di designazione:
Piano per tavanno chiarimenti
- Per comodità, collegare la lampada con il numero assegnato all'interruttore.
- Designazione sul distributore cutia.
- Lampada a sospensione (applique).
- Determina il paese sul cancello al cancello.
- Polyley.
Finitura all'origine
Indicazione per alto alla fine della cottura sotto.
Posizione sull'autostrada dal muro vgraden (numero sa markrani in cherveno).
- Specifiche per cuties per quadri elettrici per contatti.
- Posizionamento Direttamente sulla parete tra i cavi dal punto al taglio e proteggere il pannello.
- Determinazione dei confini dei muri trabi prez.
- Broyat sul nucleo del cavo.
Pianificare la posizione in punti a bassa corrente
- UTP - prese per conduttori Internet e punti Wi-Fi.
- TV - Prese per cavo TV.
Schema per il livellamento sul potenziale (messa a terra e collegamento del bus di messa a terra principale per tutti i tubi, tagli da apparecchiature metalliche).


Tutti gli elementi elettrici su tavana: vantaggi e svantaggi, confronta valore e praticità
Nessun prezzo fisso o listino prezzi per i lavori di installazione. Togliti di mezzo e mettiti in contatto con la popolazione. Vvv Voronezh ea Mosca - più di 100.000 rubli. Puoi, sì, determinare le differenze di prezzo di una percentuale dello stesso per determinare il tipo di lavoro. Ad esempio, un prezzo per un singolo metro per un cavo, inserito in un corrugato, e dal 20% per -skjp da un covone. Distributore di cutia su tavana con 25% a -eutina da deviatore di cutia in stenata. Ima ha un prezzo diverso per kabelavaneto in kutiya: skjpo - zavaryavane; media in termini di prezzo, qualità e conformità ai documenti normativi - pressata con tubo termosaldato; nay-eutinata e contraddittorio e vrzkata con tag su WAGO e chiacchiere vrzki.
Qualsiasi programma di installazione ha bisogno di più esperienza e assicurarsi che il metodo di installazione sia conveniente.La principale riparazione di questa perversione durerà per molti anni e il tremore e questa ima prevedono che sarà utile solo ora. Non una garanzia per il servizio a lungo termine. Da -skjpi nel lavoro e dal prezzo del materiale, la riparazione è distorta, prevedendo tutto in futuro - pancia da sfruttamento dlgiyat.
Tavannoto kabelevane e no - tipo conveniente di installazione e lavoro on-natatshna. L'hanno dato in corrugato o in pulegge, con una specie di cavo, con accesso limitato al distributore di kutia o meno, ma pervertono il lavoro da soli o con l'aiuto di specialisti: dipende da te. Le informazioni nell'articolo tazi sono utili e prenderai la decisione giusta.







